Als Mitte der 90er Jahre in einer Nacht-und-Nebel-Aktion Thürlings Hof verschwand (das Abrißverbot war wohl schon unterwegs, aber die Planierraupe war schneller), haben wir uns damit getröstet, daß ein Neubau an dieser Stelle dem Dorf vielleicht auch ganz gut tun würde.

Gut fünf Jahre war die Fläche nun eine Brache, lange Zeit davon mit Bauschutt-Bergen und jeder Menge Müll - manches davon wurde weggefahren und über den Rest ist im wahrsten Sinne des Wortes Gras gewachsen. Und wir genügsamen Mehrower haben uns damit abgefunden, daß mitten im Dorf hinter einem häßlicher Bauzaun eine noch häßlichere Brache liegt. Na, wenn es die Einzige gewesen wäre, hätte sie vielleicht mehr Beachtung gefunden.

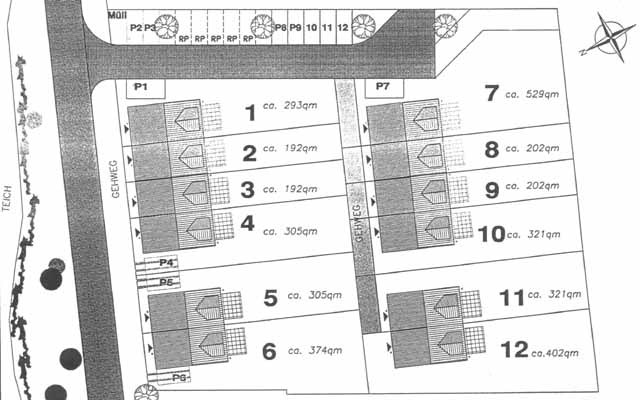
Jetzt tut sich da endlich was. Eine Firma NCC aus Fürstenwalde plant, diese Fläche mit Doppel- und Reihenhäusern zu bebauen. In zwei Reihen sollen parallel zur Straße je ein 4er-Reihenhaus und ein Doppelhaus entstehen, insgesamt also 12 Wohneinheiten.


Von der Straße aus könnte das dann später mal etwa so aussehen:

Die Sitzungsteilnehmer

Auf der Gartenseite haben die Häuser jeweils eine Terrasse mit zwei großen Glastüren, die Endhäuser besitzen zusätzlich noch eine Glastür im Giebel.
Während zur Straße hin im Obergeschoß nur Dachflächenfenster sind, lockern auf der Gartenseite große Gauben die Dachfläche auf.

Unter anderem in Fürstenwalde stehen schon solche Reihen- und Doppelhäuser, die hell gestrichen sehr freundlich aussehen.
Die Sitzungsteilnehmer

Nun bleibt nur zu hoffen, daß der Bau bald losgeht und schnell fertig wird, damit der jetzige Schandfleck mitten im Dorf bald verschwunden ist.

Stand: Dezember 2001